Seniorenwohnung • Neubau • Erstbezug • Grünruhelage / 3-Zimmer-Wohnung mit Balkon, Garten und Garage! (Top 2 - 1.OG - 81 m² )
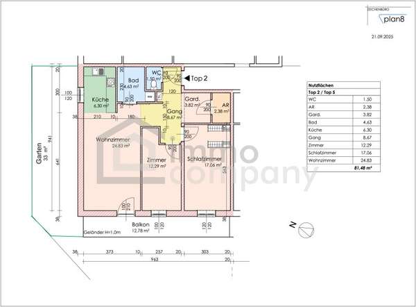
„GEMEINSAM statt Einsam !!“ - Wohnungen für alle im besten Alter ab 50 + Diese kleine Wohnhausanlage mit 6 Wohnungen bietet den Bewohnern ein optimales, seniorengerechtes Wohnumfeld in grüner Lage mit guter Infrastruktur - einfach beste Lebensqualität! + barrierefrei + Hauseigener Lift + Gemeinschaftsraum: kommunikativer Treffpunkt für gemeinsame Interessen. Feiern, Kartenspiel, Schach etc. + Fitnessraum: Laufband, Ergometer, Rudergerät, Tischtennis etc. + Wellnessraum: Dampfkabine, Infrarot etc. + Beauty Spa: eigene Räumlichkeit für Friseur, Massage, Pediküre etc. + Gemeinschaftsgarten mit Möglichkeit zum Selbstanbau + Eigenes Appartement für 24h Betreuung + Bei Bedarf: Betreuung durch das Rote Kreuz + Waldrand,- Ruhelage und Grün,- Fernblick Objektbeschreibung 6 Wohneinheiten mit Garten, überdachtem Balkon (1.Wohngeschoss) oder Terrasse (2. Wohngeschoss) und Gemeinschaftsgarten Ausstattung Schlüsselfertig, ausgenommen Küche Plasmathermen Heizung - neueste Technik, energieeffizient und kostensparend Gästeparkplatz - je Wohneinheit 2 Stellplätze vorgesehen Zuzüglich 1 PKW Garagenplatz obligat, Kaufpreis: €16.000,- Fertigstellung Ende 2026 - Beziehbar nach VereinbarungProfitieren Sie so von der Möglichkeit der Mitgestaltung Ihres Wohndomizils !- Sonderwünsche sind gegen Aufzahlung möglich. !! Mit guter Rendite auch als ANLEGERWOHNUNG !! geeignet. WohnungsbeschreibungWohnung Top 2 / 1. Wohngeschoss: Die Wohnung mit 81,48 m² und einem überdachten Balkon (Ausrichtung Südwest) sowie einem kleinen Garten verfügt über folgende Raumaufteilung: * Gang: 8,67 m² * Wohnzimmer: 24,83 m² * Küche: 6,30 m² * Zimmer: 12,29 m² * Schlafzimmer: 17,06 m² * Garderobe: 3,82 m² * Abstellraum: 2,38 m² * Bad: 4,63 m² * WC: 1,50 m² * Balkon: 13,00 m² * Garten: 33,00 m ² zusätzlich im Erdgeschoss: * Kellerabteil: 6,40 m² * Garage (optional): 15,66 m² Der Kaufpreis ohne Garage beläuft sich auf 368.000.- € für den Endnutzer. Der Anlegerkaufpreis beläuft sich auf 307.000.- € netto zzgl. 20% USt. LageDie Stadt liegt am Fuße des Leithagebirges und ist die kleinste Landeshauptstadt in Österreich. Eisenstadt ist eine wachsende Stadt mit hoher Lebensqualität. Die 14.000-Einwohner-Stadt verfügt über eine moderne und leistungsfähige Infrastruktur, ein vielfältiges kulturelles Angebot, zahlreiche Freizeiteinrichtungen und beste ökologische Bedingungen.Besonders für die goldene Generation hat die burgenländische Landeshauptstadt einiges zu bieten. Um die Belange der Senioren vertreten zu können, wurde der Seniorenbeirat gegründet. Aktivitäten:Die burgenländische Landeshauptstadt bietet ein breitgefächertes Freizeitprogramm. Sportbegeisterte fühlen sich im Allsportzentrum, im Freibad oder auf einer der zahlreichen Lauf,- Spazier und Radwege oder dem Wandererlebnispfad in der Natur heimisch. Kulturell bietet die Stadt zahlreiche interessante Museen & Galerien mit teilweise wechselnden Ausstellungen. Verkehrsanbindung:Die Busstation erreichen Sie in nur ca. 1 - 2 Gehminuten.Buslinie 277: Eisenstadt - Mannersdorf - Bruck a. d. Leitha Buslinie 235: Ebreichsdorf - Leithaprodersorf - Eisenstadt Mit dem PKW sind Sie:- in ca. 5min. mit dem Auto Zentrum Eisenstadt - in ca. 15min. in Rust am Neusiedlersee - in ca. 25min. im Seebad Mörbisch. Mörbisch, auch bekannt auch für seine alljährlichen Seefestspiele Mehr Informationen und Unterlagen zu diesem Projekt für Senioren sowie die Möglichkeit einer Besichtigung vor Ort ist gerne auf Anfrage möglich!Hinweis gemäß Energieausweisvorlagegesetz: Ein Energieausweis wurde vom Eigentümer bzw. Verkäufer, nach unserer Aufklärung über die generell geltende Vorlagepflicht, sowie Aufforderung zu seiner Erstellung noch nicht vorgelegt. Daher gilt zumindest eine dem Alter und der Art des Gebäudes entsprechende Gesamtenergieeffizienz als vereinbart. Wir übernehmen keinerlei Gewähr oder Haftung für die tatsächliche Energieeffizienz der angebotenen Immobilie.Wir weisen darauf hin, dass zwischen dem Vermittler und dem zu vermittelnden Dritten ein familiäres oder wirtschaftliches Naheverhältnis besteht.Der Vermittler ist als Doppelmakler tätig.Nutzen Sie die einmalige Gelegenheit, diese Immobilie zu besichtigen – sehen und erleben ist sehr viel eindrucksvoller!Eine Besichtigung ist kostenfrei und unverbindlich, und gibt Ihnen einen unverfälschten Eindruck von der Immobilie.Gerne unterstütze ich Sie auch bei der Finanzierung sowie beim Verkauf/Vermietung Ihrer Immobilie.
Infrastruktur / EntfernungenGesundheitArzt <1.000mApotheke <1.500mKlinik <7.500mKrankenhaus <2.000mKinder & SchulenSchule <1.000mKindergarten <500mUniversität <2.000mHöhere Schule <1.500mNahversorgungSupermarkt <1.500mBäckerei <1.500mEinkaufszentrum <2.500mSonstigeBank <1.500mGeldautomat <1.500mPost <1.500mPolizei <1.500mVerkehrBus <500mAutobahnanschluss <3.500mBahnhof <1.500mAngaben Entfernung Luftlinie / Quelle: OpenStreetMap

















